Dongen – Beethovenstraat 34 - Van den Bosch makelaars

Dongen – Beethovenstraat 34

€ 329.000,- k.k.

Postcode
5102 XB
tuin
achtertuin
Garage
geen garage
kamers
6
Slaapkamers
4
Woon opp.
130 m2
Perceel opp.
163 m2
Type
tussenwoning
Inhoud
461 m3
Bouwjaar
1971
Bouwvorm
bestaande bouw
Soort
eengezinswoning
ligging
in woonwijk
download brochure
Deel deze woning op:

Omschrijving

Deze woning wordt te koop aangeboden via Van den Bosch makelaars.

Welkom in de Beethovenstraat 34. Deze goed ingedeelde gezinswoning biedt volop mogelijkheden. Ben jij de koper die deze woning naar eigen smaak brengt? Met drie slaapkamers op de eerste verdieping, een extra slaapkamer op zolder, een complete badkamer, een gezellige houtkachel en een fraai aangelegde tuin met vijver, schuur en overkapping is dit een ideale woning voor gezinnen die comfortabel willen wonen.

Belangrijkste kenmerken
– Ruime en lichte woonkamer met grote raampartijen;
– Sfeervolle houtkachel;
– Praktische bijkeuken met wasmachineaansluiting;
– 3 slaapkamers op de eerste verdieping;
– Extra (slaap)kamer en bergruimte op zolder;
– Complete badkamer met douche, ligbad en toilet;
– Vrijstaande schuur met elektra;
– Tuin voorzien van overkapping en achterom;
– Speeltuinen en basisschool op loopafstand;
– Nabij uitvalswegen.

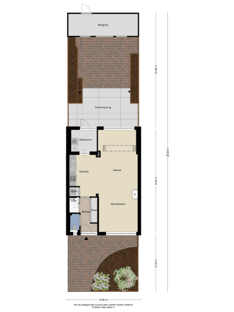
Begane grond
Via de entree betreedt u de hal met toegang tot de toiletruimte, de meterkast en een praktische (trap)kast die ideaal is voor extra bergruimte.

De keuken is functioneel ingericht en voorzien van een 4-pits gasfornuis, magnetron, afzuigkap en vaatwasser. Dankzij de aanwezige trapkast is er extra bergruimte beschikbaar. De keuken biedt voldoende werk- en opbergruimte en staat in directe verbinding met de woonkamer.

De woonkamer is opvallend licht door de grote raampartijen en biedt voldoende ruimte voor zowel een comfortabele zithoek als een royale eethoek. De houtkachel vormt een sfeervol middelpunt in de ruimte en zorgt voor extra warmte en gezelligheid tijdens de wintermaanden.

Aansluitend bevindt zich de praktische bijkeuken met aansluiting voor de wasmachine en droger.

Eerste verdieping
Op de eerste verdieping bevinden zich drie ruime slaapkamers. Eén van de slaapkamers is voorzien van een wastafel.
De badkamer is compleet uitgevoerd met een douche, ligbad, toilet en wastafel.

Zolder
De zolderverdieping is bereikbaar via een vaste trap en biedt een extra slaapkamer. Daarnaast is er veel praktische bergruimte aanwezig achter de knieschotten. Op deze verdieping bevindt zich tevens de cv-installatie. De zolder is uitermate geschikt als extra slaap-, werk- of logeerkamer.

Tuin
De achtertuin is verzorgd aangelegd en gelegen op het noorden. De aanwezige vijver geeft de tuin een sfeervol karakter. Achterin de tuin staat een vrijstaande schuur met elektra, ideaal voor opslag of het uitoefenen van een hobby.
Daarnaast beschikt de tuin over een overkapping waar u heerlijk beschut kunt zitten. Dankzij de achterom is de tuin ook gemakkelijk bereikbaar met bijvoorbeeld fietsen.

Duurzaamheid
– C.V-ketel;
– Vloer-, muur-, dakisolatie;
– Energielabel C.

Enthousiast geworden? Bel voor een vrijblijvende afspraak. We geven graag de mogelijkheden door!

Meer dan gemiddelde belangstelling: Soms zijn er zo veel belangstellenden voor een woning, dat het moeilijk te bepalen is wie de meest geschikte koper is. Op dat moment kan de verkoper – in overleg met de makelaar – besluiten de (verkoop)procedure tussentijds te wijzigen.

De informatie is door ons met de nodige zorgvuldigheid samengesteld. Alle verstrekte informatie moet beschouwd worden als een uitnodiging tot het doen van een bod of om in onderhandeling te treden. Onzerzijds wordt echter geen enkele aansprakelijkheid aanvaard voor enige onvolledigheid, onjuistheid of anderszins, dan wel de gevolgen daarvan. Alle opgegeven maten en oppervlakten zijn indicatief.

WhatsApp chat