Dongen – Roerdomphof 5 - Van den Bosch makelaars

NIEUW

Dongen – Roerdomphof 5

€ 409.000,- k.k.

Postcode
5103 KA
tuin
achtertuin
Garage
geen garage
kamers
5
Slaapkamers
3
Woon opp.
101 m2
Perceel opp.
156 m2
Type
tussenwoning
Inhoud
357 m3
Bouwjaar
1986
Bouwvorm
bestaande bouw
Soort
eengezinswoning
ligging
aan rustige weg, in woonwijk
download brochure
Deel deze woning op:

Omschrijving

Deze woning wordt te koop aangeboden via Van den Bosch makelaars.

Roerdomphof 5 – Comfortabel en energiezuinig wonen met volop ruimte

Welkom aan de Roerdomphof 5! Deze verzorgde woning biedt een fijne combinatie van ruimte, licht en functionaliteit. Met meerdere ruime slaapkamers, een moderne badkamer, een complete keuken en een ruime, zonnige tuin is dit een ideale gezinswoning. De woning is gelegen in een gezellige, rustige straat en woonwijk en biedt een vrij uitzicht. In de wijk zijn speel- en schoolvoorzieningen en voor de overige voorzieningen hoef je niet ver te gaan, alles is dichtbij in het mooie Dongen.

Belangrijke kenmerken;
– Zeer nette tussenwoning;
– Alle woonlagen voorzien van houten vloeren;
– Keuken met SMEG retro jaren ’50 5-pits gasfornuis, koel-vriescombinatie, afzuigkap en vaatwasser;
– Drie volwaardige ruime slaapkamers;
– Woning is volledig voorzien van houten deuren, sommige met glas voor extra lichtinval;
– Zonnige tuin met elektrisch bedienbare zonwering en achterom;
– Ruime berging met elektriciteit (16m²);
– Knieschotten op de verdiepingen voor extra bergruimte;
– Gelegen in een rustige straat en kindvriendelijke woonwijk;
– Speel- en schoolvoorzieningen dichtbij;
– Nabij uitvalswegen.

Indeling

Begane grond
Via de entree komt u binnen in de hal met meterkast en een toiletruimte. Vanuit hier loopt u door naar de lichte woonkamer, die beschikt over een praktische trapkast en een deur naar de trapopgang. De woonkamer vormt een prettige leefruimte met voldoende plaats voor een comfortabele zit- en eethoek.

De keuken is compleet uitgerust met een koel-vriescombinatie (SMEG), een 5-pits gasfornuis (SMEG), vaatwasser en afzuigkap (SMEG). Een functionele en fijne plek om te koken.

Eerste verdieping
Op de eerste verdieping bevinden zich twee ruime slaapkamers en een badkamer. Aan de voorzijde ligt een slaapkamer met veel lichtinval. Aan de achterzijde bevindt zich een tweede slaapkamer, welke nu is ingericht al inloopkast. Deze is voorzien van knieschotten die zorgen voor extra bergruimte. Ook zijn hier twee nieuwe Velux ramen geplaatst waardoor er nog meer lichtinval is.

De badkamer is modern en compleet ingericht met een douche, een dubbele wastafel met wastafelmeubel en een toilet.

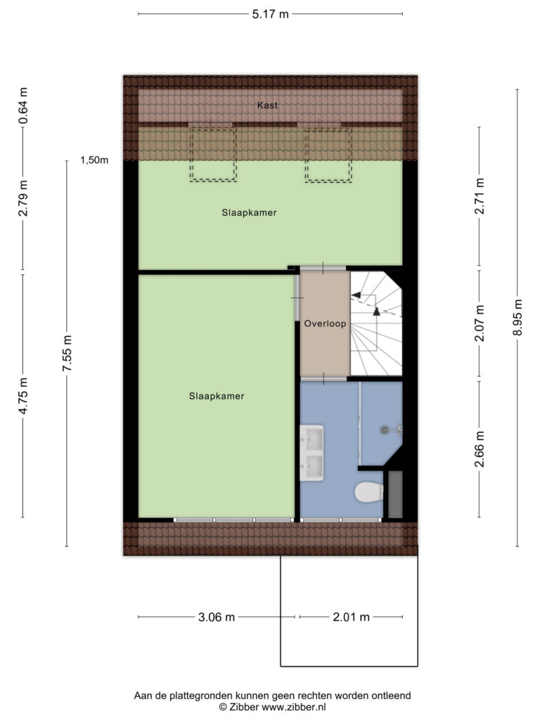
Tweede verdieping
De tweede verdieping biedt nog meer ruimte. Hier vindt u nog een ruime slaapkamer met veel lichtinval dankzij het nieuwe Velux dakraam en praktische knieschotten. Daarnaast is hier de aansluiting voor de wasmachine en droger gerealiseerd.

Tuin
De achtertuin is netjes betegeld en beschikt over een achterom. Dankzij de aanwezige zonwering kunt u hier comfortabel genieten van zonnige dagen. Achterin de tuin staat een zeer ruime berging voorzien van elektriciteit, ideaal voor opslag of het stallen van fietsen. Bovendien beschikt de woning over 7 zonnepanelen, wat bijdraagt aan lagere energielasten en duurzaam wonen.

Duurzaamheid:
– HR++ beglazing (achterzijde volledig vernieuwd in 2020 en 2021);
– 7 zonnepanelen (2020);
– HR combiketel (Remeha 2021);
– Energielabel A.

Enthousiast geworden? Bel voor een vrijblijvende afspraak. We geven graag de mogelijkheden door!

Meer dan gemiddelde belangstelling: Soms zijn er zo veel belangstellenden voor een woning, dat het moeilijk te bepalen is wie de meest geschikte koper is. Op dat moment kan de verkoper – in overleg met de makelaar – besluiten de (verkoop)procedure tussentijds te wijzigen.

De informatie is door ons met de nodige zorgvuldigheid samengesteld. Alle verstrekte informatie moet beschouwd worden als een uitnodiging tot het doen van een bod of om in onderhandeling te treden. Onzerzijds wordt echter geen enkele aansprakelijkheid aanvaard voor enige onvolledigheid, onjuistheid of anderszins, dan wel de gevolgen daarvan. Alle opgegeven maten en oppervlakten zijn indicatief.

WhatsApp chat