Tilburg – Kinderdijkstraat 1 - Van den Bosch makelaars

Tilburg – Kinderdijkstraat 1

€ 499.000,- k.k.

Postcode
5045 PA
tuin
achtertuin
Garage
inpandig
kamers
6
Slaapkamers
2
Woon opp.
105 m2
Perceel opp.
374 m2
Type
geschakelde woning
Inhoud
437 m3
Bouwjaar
1992
Bouwvorm
bestaande bouw
Soort
eengezinswoning
ligging
aan water, aan rustige weg, in woonwijk
download brochure
Deel deze woning op:

Omschrijving

Deze woning wordt te koop aangeboden via Van den Bosch makelaars.

Aan de Kinderdijkstraat 1 in Tilburg vindt u deze praktisch ingedeelde woning met een slaapkamer en badkamer op de begane grond. De woning beschikt over een ruime tuin aan het water, een garage en elektrische rolluiken in de slaapkamer en woonkamer. Dankzij de ligging nabij winkelcentrum De Heijhoef en diverse voorzieningen woont u hier op een fijne, centrale locatie met alles binnen handbereik. Ben jij de koper die van deze woning zijn thuis maakt?

Belangrijke kenmerken;
– Badkamer en slaapkamer op de begane grond;
– Gelegen nabij winkelcentrum De Heijhoef;
– Elektrische rolluiken in slaapkamer en woonkamer;
– Onderhoudsvriendelijke gevelbekleding;
– Garage met elektrische sectionaaldeur;
– Ruime tuin met veranda en ligging aan het water.

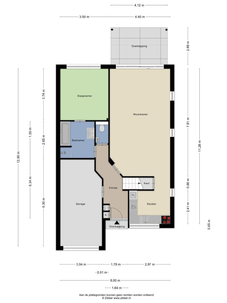
Begane grond
Via de hal verdieping betreedt u de woning. Hier bevind zich de meterkast welke is voorzien van automatenschakelaars en beschikt over 6 groepen en 2 aardlekschakelaars.

De woonkamer is ruim en licht dankzij de grote raampartijen en de schuifpui naar de tuin. De tegelvloer zorgt voor een onderhoudsvriendelijke basis.

Aan de voorzijde bevindt zich de keuken met uitzicht over de straat. De keuken is uitgerust met een vaatwasser, combi oven/magnetron, koelkast en keramische kookplaat. Daarnaast is er een praktische trapkast aanwezig voor extra bergruimte.

Op de begane grond bevindt zich tevens een slaapkamer met. Aansluitend ligt de badkamer, volledig betegeld en voorzien van een inloopdouche, wastafelmeubel en ligbad.

Verder is er een separate toiletruimte met fontein, volledig betegeld.

Vanuit de hal is er toegang tot de garage. De garage beschikt over een tegelvloer, aansluitingen voor wasmachine en droger en een elektrische sectionaaldeur.

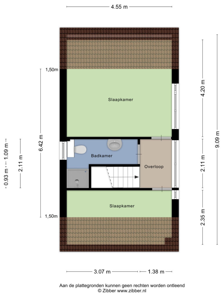
Eerste verdieping
Op de eerste verdieping komt u uit op de overloop die toegang biedt tot de verschillende ruimtes.
Aan de achterzijde bevindt zich een sfeervolle slaapkamer met een speelse daklijn. Door de hoogte in de kap voelt deze kamer extra ruim en licht aan, wat zorgt voor een aangename en open sfeer.

Daarnaast is er een praktische bergruimte aanwezig, ideaal voor het opbergen van seizoensspullen, koffers of andere zaken die u netjes uit het zicht wilt houden.

Ook vindt u op deze verdieping een tweede badkamer, voorzien van een douche, toilet en wastafel. Hiermee beschikt de woning over sanitair op zowel de begane grond als de eerste verdieping, wat zorgt voor extra comfort en gemak.

Tuin
De tuin is ruim opgezet en fraai aangelegd met mooie beplantingen en klinkerbestrating. De veranda biedt een fijne plek om beschut te zitten en van het buitenleven te genieten. Daarnaast is er een tuinhuisje aanwezig, voorzien van elektra, ideaal voor opslag of hobbygebruik.

De woning beschikt over een eigen oprit en via een plateau met trap is de tuin gelegen aan het water, wat zorgt voor een bijzonder en vrij gevoel.

Duurzaamheid
– Dak-, muur-, vloerisolatie;
– HR beglazing;
– Rolluiken op de slaapkamer en woonkamer;
– Stadsverwarming;
– Energielabel…..;

Enthousiast geworden? Bel voor een vrijblijvende afspraak. We geven graag de mogelijkheden door!

Meer dan gemiddelde belangstelling: Soms zijn er zo veel belangstellenden voor een woning, dat het moeilijk te bepalen is wie de meest geschikte koper is. Op dat moment kan de verkoper – in overleg met de makelaar – besluiten de (verkoop)procedure tussentijds te wijzigen.

De informatie is door ons met de nodige zorgvuldigheid samengesteld. Alle verstrekte informatie moet beschouwd worden als een uitnodiging tot het doen van een bod of om in onderhandeling te treden. Onzerzijds wordt echter geen enkele aansprakelijkheid aanvaard voor enige onvolledigheid, onjuistheid of anderszins, dan wel de gevolgen daarvan. Alle opgegeven maten en oppervlakten zijn indicatief.

WhatsApp chat