Dongen – Bas Dongen 7 - Van den Bosch makelaars

Dongen – Bas Dongen 7

€ 965.000,- k.k.

Postcode
5101 BA
tuin
tuin rondom
Garage
vrijstaand steen
kamers
6
Slaapkamers
4
Woon opp.
175 m2
Perceel opp.
1.040 m2
Type
vrijstaande woning
Inhoud
725 m3
Bouwjaar
1985
Bouwvorm
bestaande bouw
tuin opp.
800 m2
Soort
villa
ligging
aan park, aan rustige weg, in bosrijke omgeving
download brochure
Deel deze woning op:

Omschrijving

Deze woning wordt te koop aangeboden via Van den Bosch makelaars.

Bas Dongen 7, Stijlvol wonen met comfort, rust en verfijnde wellness.

Op een bijzonder rustige locatie, in een autoluwe straat nabij de karakteristieke Kerkstraat, bevindt zich deze uitstekend onderhouden en met zorg bewoonde woning. Bas Dongen 7 biedt een harmonieuze combinatie van privacy, hoogwaardige afwerking en een centrale ligging op loopafstand van het centrum.

Juist in dit seizoen komt de kwaliteit van deze woning volledig tot zijn recht: het samenspel tussen binnen en buiten, de fraai aangelegde tuin en de aanwezige wellnessfaciliteiten creëren een sfeer van rust en ontspanning die het hele jaar door voelbaar is.

De woning beschikt over een lichte woonkamer met openslaande deuren, een moderne keuken voorzien van Miele-apparatuur, vier volwaardige slaapkamers en een exclusieve tuin met zwembad, sauna en meerdere terrassen. Met energielabel A en diverse duurzame voorzieningen is het wooncomfort bovendien volledig toekomstgericht.

De belangrijkste kenmerken op een rij:
– Gelegen in een rustige, autoluwe straat met optimale privacy;
– Hoogwaardig wooncomfort met eigen wellnessfaciliteiten;
– Op loopafstand van diverse sportverenigingen, het centrum en een basisschool;
– Alle kozijnen in kunststof uitgevoerd;
– Rolluiken (veelal elektrisch bedienbaar);
– Nieuwe pomp voor de vloerverwarming (2026);
– Alarmsysteem aanwezig;
– Met oog voor detail onderhouden.

Indeling

Begane grond
De royale entree met vide zet direct de toon. Hier bevinden zich de meterkast en een modern afgewerkt toilet. Vanuit de hal zijn de keuken, woonkamer en trapopgang bereikbaar.

De keuken, gesitueerd aan de achterzijde, is compleet uitgevoerd met hoogwaardige Miele-inbouwapparatuur, waaronder een 5-pits gasfornuis, vaatwasser (2024), combi-oven (2024), koelkast, vriezer en een geïntegreerd koffiezetapparaat. De combinatie van vloerverwarming en strakke afwerking zorgt voor een aangenaam en verzorgd geheel.

Aansluitend bevinden zich de kelder en een praktische bijkeuken met aansluitingen voor wasapparatuur.

De woonkamer is ruim opgezet en kenmerkt zich door een prettige lichtinval dankzij drie dubbele openslaande deuren naar de tuin. De marmeren vloer, gashaard en vaste kasten dragen bij aan een stijlvolle en warme ambiance.
Aan de achterzijde ligt de tuinkamer met een massief houten vloer, een comfortabele plek waar binnen en buiten op subtiele wijze samenkomen.

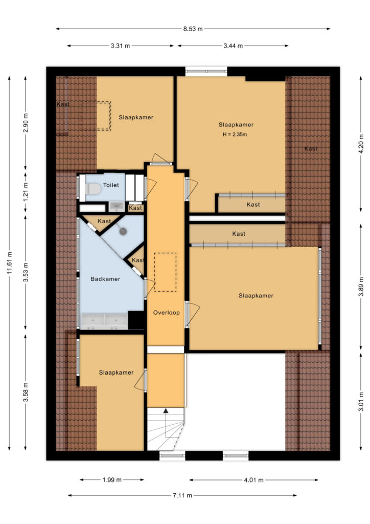
Eerste verdieping
De overloop biedt toegang tot vier slaapkamers, een badkamer en een separate toiletruimte.
De hoofdslaapkamer beschikt over een Frans balkon met uitzicht op de tuin en is voorzien van een vaste kast en een verzorgde afwerking.
De moderne badkamer aan de achterzijde is uitgerust met een dubbel wastafelmeubel, een inloopdouche, praktische bergruimte, een dakkapel en elektrische vloerverwarming.
Aan de voorzijde bevindt zich een tweede slaapkamer met dakkapel en bergkast. De derde slaapkamer aan de achterzijde beschikt over een dakraam met verduistering. Alle vertrekken zijn netjes en consistent afgewerkt.

Zolder
Via vlizotrap bereikbare bergzolder met cv-installatie (voorbereid op hybride systeem) en extra bergruimte.

Tuin, garage en wellness
De met zorg ontworpen tuin vormt een verlengstuk van de woning en biedt een hoge mate van privacy. De indeling met meerdere terrassen en geïntegreerde verlichting maakt het geheel zowel functioneel als sfeervol.

Het royale zwembad, de buitendouche en de sauna met eigen sanitaire voorzieningen geven deze woning een uitgesproken wellnesskarakter, een plek waar ontspanning vanzelfsprekend is.

De garage is praktisch ingericht en voorzien van een betonvloer en technische installaties. De ruime oprit met carport biedt plaats aan meerdere voertuigen.

Duurzaamheid
– Dak-, gevel- en vloerisolatie;
– Kunststof kozijnen met isolerende beglazing;
– 37 zonnepanelen;
– Voorbereiding hybride cv-installatie;
– Energielabel A.

Enthousiast geworden?
Dit is zo’n woning die u moet beleven en toch zeker in dit seizoen. Een plek die u dagelijks het gevoel geeft thuis te komen in een omgeving waar alles klopt. Wij nodigen u graag uit voor een persoonlijke bezichtiging.

Meer dan gemiddelde belangstelling:
Soms zijn er zo veel belangstellenden voor een woning, dat het moeilijk te bepalen is wie de meest geschikte koper is. Op dat moment kan de verkoper – in overleg met de makelaar – besluiten de (verkoop)procedure tussentijds te wijzigen.

De informatie is door ons met de nodige zorgvuldigheid samengesteld. Alle verstrekte informatie moet beschouwd worden als een uitnodiging tot het doen van een bod of om in onderhandeling te treden. Onzerzijds wordt echter geen enkele aansprakelijkheid aanvaard voor enige onvolledigheid, onjuistheid of anderszins, dan wel de gevolgen daarvan.
Alle opgegeven maten en oppervlakten zijn indicatief. Er is een meetrapport conform NEN2580 beschikbaar.

WhatsApp chat