Oosterhout – Eksterstraat 18 - Van den Bosch makelaars

Oosterhout – Eksterstraat 18

€ 375.000,- k.k.

Postcode
4901 BB
Garage
geen garage
kamers
6
Slaapkamers
4
Woon opp.
114 m2
Perceel opp.
148 m2
Type
tussenwoning
Inhoud
404 m3
Bouwjaar
1971
Bouwvorm
bestaande bouw
Soort
eengezinswoning
ligging
aan rustige weg, in woonwijk
download brochure
Deel deze woning op:

Omschrijving

Deze woning wordt te koop aangeboden via Van den Bosch makelaars.

Eksterstraat 18 – Oosterhout

Op een fijne locatie, op loopafstand van het centrum van Oosterhout, ligt deze uitgebouwde en uitstekend onderhouden tussenwoning. De woning beschikt over vier slaapkamers, een moderne badkamer, een ruime berging en een zonnige achtertuin op het zuiden. In de straat is volop parkeergelegenheid aanwezig.

Belangrijkste kenmerken:
– Centrale ligging nabij het centrum;
– Zonnige achtertuin op het zuiden;
– Ruime berging met elektra en achterom;
– Rolluiken aan de achterzijde op de eerste verdieping;
– Elektrisch bedienbaar zonnescherm aan de achterzijde van de begane grond;
– Moderne keuken en badkamer.

Indeling

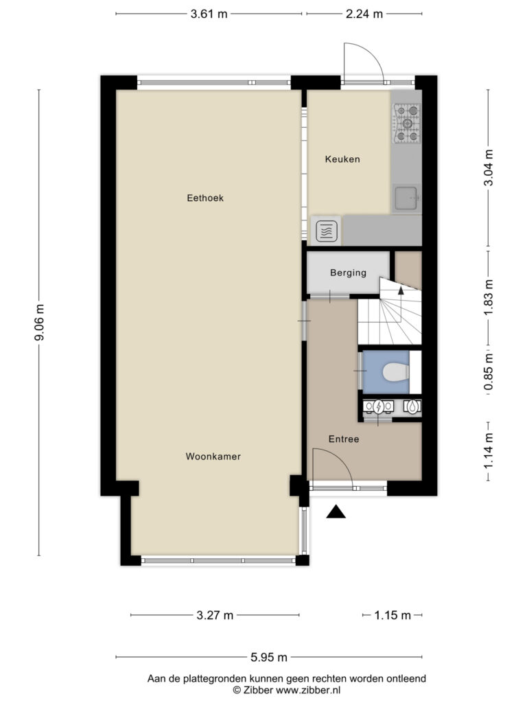
Begane grond
U komt binnen in de hal met trapopgang naar de eerste verdieping, meterkast, garderobenis en een volledig betegelde toiletruimte.

Vanuit de hal bereikt u de lichte en ruime woonkamer. Door de grote raampartijen aan zowel de voor- als achterzijde profiteert u hier van veel natuurlijk daglicht. De vloer is afgewerkt met een nette pvc-vloer. Dankzij de uitbouw aan de voorzijde is de woonkamer extra ruim en comfortabel.

De moderne keuken is verzorgd uitgevoerd en voorzien van diverse inbouwapparatuur, waaronder een 5-pits gaskookplaat, afzuigkap, koelkast, vaatwasser en een combi-oven. Vanuit de keuken heeft u direct toegang tot de achtertuin.

Eerste verdieping
De overloop geeft toegang tot drie slaapkamers en de badkamer. Twee slaapkamers zijn gelegen aan de achterzijde van de woning en één slaapkamer aan de voorzijde.

De moderne en ruime badkamer is uitgerust met een inloopdouche, toilet en een wastafelmeubel.

Tweede verdieping
De tweede verdieping bestaat uit een voorzolder met aansluitingen voor wasmachine en droger en de HR-combiketel (Intergas, 2020). Daarnaast bevindt zich hier de vierde slaapkamer.

Deze verdieping is afgewerkt met een fraaie laminaatvloer en beschikt aan de achterzijde over een dakkapel met kunststof kozijnen en HR++ beglazing. Aan de voorzijde is een Velux dakraam met HR-glas geplaatst. De woning is voorzien van dakisolatie en er is voldoende bergruimte aanwezig.

Tuin
De zonnige achtertuin is gelegen op het zuiden en biedt veel privacy. De tuin beschikt over een overkapping die grenst aan de berging. Achter in de tuin bevindt zich een ruime berging met elektra en een praktische achterom.

Duurzaamheid:
– Dubbel glas, HR en HR++ beglazing;
– HR Combiketel (Intergas, 2020);
– Dakisolatie;
– Energielabel C.

Enthousiast geworden?
Bel voor een vrijblijvende afspraak. We vertellen u graag meer over deze perfect onderhouden woning op een prachtige locatie dichtbij het centrum van Oosterhout!

Meer dan gemiddelde belangstelling
Soms zijn er zo veel belangstellenden voor een woning, dat het moeilijk te bepalen is wie de meest geschikte koper is. Op dat moment kan de verkoper – in overleg met de makelaar – besluiten de (verkoop)procedure tussentijds te wijzigen.

Disclaimer
De informatie is door ons met de nodige zorgvuldigheid samengesteld. Alle verstrekte informatie moet beschouwd worden als een uitnodiging tot het doen van een bod of om in onderhandeling te treden. Onzerzijds wordt echter geen enkele aansprakelijkheid aanvaard voor enige onvolledigheid, onjuistheid of anderszins, dan wel de gevolgen daarvan.
Alle opgegeven maten en oppervlakten zijn indicatief. Er is een meetrapport conform NEN2580 beschikbaar.

WhatsApp chat