Dongen – Vennen 31 - Van den Bosch makelaars

NIEUW

Dongen – Vennen 31

€ 679.000,- k.k.

Postcode
5104 CS
tuin
achtertuin
Garage
vrijstaand steen
kamers
7
Slaapkamers
4
Woon opp.
149 m2
Perceel opp.
565 m2
Type
geschakelde woning
Inhoud
553 m3
Bouwjaar
2000
Bouwvorm
bestaande bouw
Soort
eengezinswoning
ligging
aan drukke weg, in centrum
download brochure
Deel deze woning op:

Omschrijving

Deze woning wordt te koop aangeboden via Van den Bosch makelaars.

Vennen 31:

Welkom bij Vennen 31, een vrijstaande woning die ruimte en comfort op een aantrekkelijke manier combineert. Deze goed onderhouden woning biedt een fijne woonomgeving met een praktische indeling, een moderne keuken, drie ruime slaapkamers en een royale tuin. Dankzij de aanwezigheid van een carport, een grote garage en diverse duurzame voorzieningen is dit een ideale woning voor gezinnen of voor iedereen die op zoek is naar extra leef- en bergruimte.

Belangrijke kenmerken
– Voorzien van carport;
– Moderne keuken (2024);
– Drie ruime slaapkamers met mogelijkheid tot een vierde slaapkamer;
– Royale tuin met grote garage;
– 10 zonnepanelen;
– Energielabel A;
– Gunstige ligging nabij het centrum van Dongen;
– Goede bereikbaarheid van uitvalswegen binnen enkele minuten.

Begane grond
Via de entree bereikt u de hal, waar zich de meterkast, het toilet en de trapopgang naar de eerste verdieping bevinden. Vanuit de hal loopt u door naar de woonkamer.

De woonkamer is gelegen aan de voorzijde van de woning en vormt een prettige, lichte leefruimte met een fijne verbinding tussen wonen en koken.

De moderne keuken, vernieuwd in 2024, is uitgevoerd in een stijlvolle donker groene kleurstelling en voorzien van hoogwaardige afwerking. De keuken beschikt over diverse inbouwapparatuur, waaronder een combi-oven, een grote koelkast, een inductiekookplaat met afzuiging en een vaatwasser. Het kunststenen werkblad en de geïntegreerde LED-verlichting zorgen voor een luxe en eigentijdse uitstraling. Vanuit de keuken is er een directe verbinding met de bijkeuken.

De bijkeuken biedt extra praktische ruimte en is voorzien van aansluitingen voor wasmachine en droger. Daarnaast is hier extra bergruimte aanwezig, waardoor de woning ook op functioneel vlak zeer compleet is.

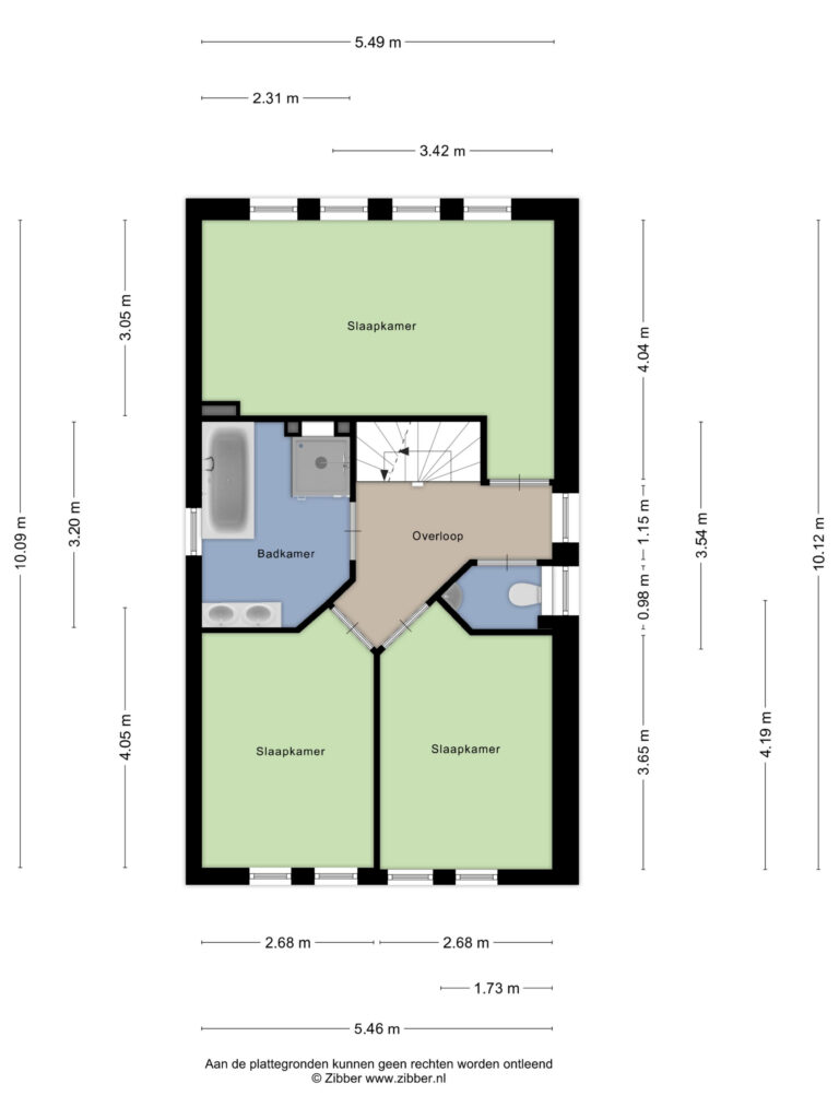
Eerste verdieping:
Op de eerste verdieping bevinden zich drie ruime slaapkamers, die allemaal comfortabel van formaat zijn.
De verdieping beschikt daarnaast over een apart toilet, wat extra comfort biedt voor het hele gezin. De badkamer is compleet ingericht met een ligbad, een douche en een dubbele wastafel en vormt een comfortabele ruimte.

Tweede verdieping
De tweede verdieping biedt volop mogelijkheden. Deze ruimte kan worden ingericht als vierde slaapkamer, maar is ook uitstekend geschikt als extra bergruimte, werkruimte of hobbykamer. Dankzij de praktische indeling is dit een waardevolle toevoeging aan de woning.

Tuin
De royale tuin biedt veel privacy en ruimte om optimaal van het buitenleven te genieten. De tuin is verzorgd aangelegd en bestaat deels uit gazon en deels uit bestrating, waardoor er meerdere zitplekken mogelijk zijn.
Achterin de tuin bevindt zich een grote garage met ruimte voor een auto en veel extra opslagmogelijkheden. De garage beschikt bovendien over een verdieping, wat extra mogelijkheden biedt voor opslag of andere doeleinden.

Duurzaamheid:
– 10 zonnepanelen;
– Kunststof kozijnen;
– HR+ glas;
– C.V. ketel (Remeha);
– Mechanische ventilatie;
– Energielabel A.

Enthousiast geworden?
Bel voor een vrijblijvende afspraak. We vertellen u graag meer over deze unieke woning aan de Vennen!

Meer dan gemiddelde belangstelling:
Soms zijn er zo veel belangstellenden voor een woning, dat het moeilijk te bepalen is wie de meest geschikte koper is. Op dat moment kan de verkoper – in overleg met de makelaar – besluiten de (verkoop)procedure tussentijds te wijzigen.

De informatie is door ons met de nodige zorgvuldigheid samengesteld. Alle verstrekte informatie moet beschouwd worden als een uitnodiging tot het doen van een bod of om in onderhandeling te treden. Onzerzijds wordt echter geen enkele aansprakelijkheid aanvaard voor enige onvolledigheid, onjuistheid of anderszins, dan wel de gevolgen daarvan.
Alle opgegeven maten en oppervlakten zijn indicatief. Er is een meetrapport conform NEN2580 beschikbaar.

WhatsApp chat