Dongen – Jagersveld 63 - Van den Bosch makelaars

NIEUW

Dongen – Jagersveld 63

€ 389.000,- k.k.

Postcode
5103 HN
tuin
achtertuin
Garage
carport
kamers
5
Slaapkamers
4
Woon opp.
113 m2
Perceel opp.
135 m2
Type
tussenwoning
Inhoud
400 m3
Bouwjaar
1980
Bouwvorm
bestaande bouw
Soort
eengezinswoning
ligging
in woonwijk
download brochure
Deel deze woning op:

Omschrijving

Deze woning wordt te koop aangeboden via Van den Bosch makelaars.

Jagersveld 63

Op zoek naar een instapklare en energiezuinige woning met een verzorgde afwerking? Deze keurig onderhouden tussenwoning, gelegen aan een groenstrook in de geliefde wijk De Biezen, biedt comfortabel wonen op een rustige en kindvriendelijke locatie. De woning is de afgelopen jaren grondig gemoderniseerd.
Met drie slaapkamers en een mogelijkheid tot creëren van een vierde slaapkamer op de zolder, energielabel A en een zonnige tuin met carport en berging is dit een ideale gezinswoning met een eigentijdse uitstraling.

De belangrijkste kenmerken op een rij:
– Keurig onderhouden tussenwoning gelegen aan een groenstrook;
– Binnen schilderwerk 2022, buiten schilderwerk 2024;
– Nieuwe keuken (2025);
– Badkamer en toilet vernieuwd in 2022;
– Dakkapel voorzien van nieuw dak (2022);
– Kozijnen berging vervangen in 2025;
– Carport met schuifdeur en berging voorzien van elektra;

Indeling

Begane grond:
Entree/hal met meterkast, toilet met fontein en trapopgang naar de eerste verdieping. De woonkamer is gelegen aan de voorzijde en heeft een fijne lichtinval, voorzien van pvc-vloer en wanden/plafonds met korrelafwerking. Aan de achterzijde bevindt zich de moderne keuken (2025) met directe toegang tot de tuin. De keuken is uitgerust met inductiekookplaat (4 pits), oven, afzuigkap en vaatwasser. Daarnaast is er een praktische bergkast aanwezig.

Eerste verdieping:
Overloop met toegang tot drie slaapkamers en de badkamer. De hoofdslaapkamer is gelegen aan de achterzijde en voorzien van laminaatvloer en wanden/plafonds met korrel. De twee slaapkamers aan de voorzijde zijn in dezelfde stijl afgewerkt.
De badkamer (2022) is modern en volledig betegeld, voorzien van inloopdouche, toilet en wastafelmeubel.

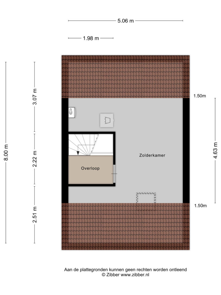
Tweede verdieping:
Via vaste trap bereikbare zolder met voorzolder en aparte wasruimte. Hier bevinden zich de wasmachineaansluiting, cv-installatie (2023) en extra bergruimte. Daarnaast is er een vierde kamer met dakraam, ideaal als logeerkamer, werkplek of hobbyruimte.

Tuin:
De achtertuin is verzorgd aangelegd met klinkerbestrating, plantenborders en een fijne zitgelegenheid. Achterin bevindt zich de carport met schuifdeur en loopdeur, alsook een berging met vernieuwde kozijnen en elektra-aansluiting.

Duurzaamheid:
– Dak-, gevel- en vloerisolatie;
– HR++ glas (2022);
– Zonnepanelen (6 stuks, 2023);
– CV-ketel Intergas (2023);
– Energielabel A.

Enthousiast geworden?
Bel voor een vrijblijvende afspraak. We geven graag de mogelijkheden door!

Meer dan gemiddelde belangstelling:
Soms zijn er zo veel belangstellenden voor een woning, dat het moeilijk te bepalen is wie de meest geschikte koper is. Op dat moment kan de verkoper – in overleg met de makelaar – besluiten de (verkoop)procedure tussentijds te wijzigen.

De informatie is door ons met de nodige zorgvuldigheid samengesteld. Alle verstrekte informatie moet beschouwd worden als een uitnodiging tot het doen van een bod of om in onderhandeling te treden. Onzerzijds wordt echter geen enkele aansprakelijkheid aanvaard voor enige onvolledigheid, onjuistheid of anderszins, dan wel de gevolgen daarvan.
Alle opgegeven maten en oppervlakten zijn indicatief. Er is een meetrapport conform NEN2580 beschikbaar.

WhatsApp chat